מגוון רחב של פרופילים ואביזרי תליה לתקרות אקוסטיות ומערכות פרופילים משתי חברות עיקריות:
חברת FOX וחברת DONN. פרופילי התקרה מתחלקים למידות מ"מ של 3.70, 1.20, 0.60, ולמידות אינצ' של 3.66, 1.22, 0.61.
רוחב הפרופיל הוא T 24 מ"מ או T 15 מ"מ, הפרופילים מגיעים בגוון לבן RAL 9016 או בגוון קרם RAL 9010 על פי דרישה.
קיימת קונסטרוקציה מסוג Fine Line המשמשת לתקרה חצי שקועה במידות 1.20, 0.60 ו-3.60 מ'. ובגוונים: לבן-לבן, לבן-שחור, אפור-אפור ואפור-שחור.
ניתן לקבל בהזמנה מיוחדת פרופילי T24 ו-T15 צבועים לפי מניפת RAL.
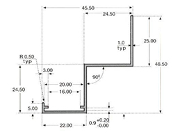
פרופיל L+Z מחובר גדול
פרופיל L+Z מחובר קטן
דוגמת לשונית DONN
דוגמת לשונית FOX
דוגמת פרופיל Fine Line
פרופיל T15
פרופיל T24
Fine Line
פרופיל L